Aus dem Gemeinderat
Gewerbegebiet Wasserstall wird erweitert
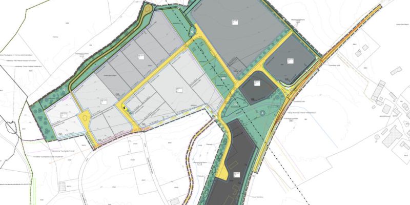
Bad Waldsee – Vor drei Wochen öffneten viele Betriebe im Wasserstall ihre Türen für die Bevölkerung. Wer offenen Auges durch das Gebiet ging, konnte kaum mehr ein freies Plätzchen für die Ansiedelung von neuen Unternehmen finden. Eines der letzten freuen Grundstücke wird im Moment von RAFI aus Berg bei Ravensburg bebaut. Die Bildschirmzeitung berichtete vom Spatenstich.
veröffentlicht am 10. November 2023
Aus dem Gemeinderat
Biogas, Drehleiter, Hallen und ein drohender Klotz in der Fürst-Erich-Straße
Kißlegg – Vielerlei. Nach der Gemeinderatssitzung am Mittwochabend im Neuen Schloss sandte dieBildschirmzeitungs-Reporter Julian Aicher sechs Berichte zu einzelnen Themen der Sitzung an die Redaktion (inzwischen alle veröffentlicht) . Dennoch: Im Rat wurde am Mittwochabend noch mehr behandelt. Daraus hier noch ein paar von Aichers Gemeinderatssplittern:
Das Magazin für Oberschwaben
Mehr gefällig?
Fasnet 2024
Verkauf der Buskarten für Auswärtsfahrten online und an den Infoabenden
Bad Waldsee – Für die Fasnet 2024 können erstmals die Buskarten für die Auswärtsfahrten im Online-Shop der Narrenzunft reserviert werden.
Das beste Ergebnis, das wir je hatten
Kämmerer Kant legte glänzende Haushaltsabrechnung für 2022 vor
Kißlegg – Vor zweieinhalb Jahren, am 11. Mai 2022, beglückwünschte Bürgermeister Dieter Krattenmacher seinen Kämmerer Roland Kant zum 40-jährigen Dienstjubiläum. Dazu konnte Kant in der Gemeinderatssitzung im Neuen Schloss am Mittwochabend dieser Woche eine bemerkenswerte Ergänzung anbringen: Der Haushalt 2022 bedeute “das beste Ergebnis, das wir je hatten” – “seit ich bei der Gemeinde bin”. Nämlich einen “Wert der liquiden Mittel” von 12.165.341,80 Euro”.
B 30 bei Ravensburg
Arbeiten an den Betondeckenträgern des Wernerhoftunnels bei Ravensburg
Ravensburg – Seit Montag, 6. November, finden im Wernerhoftunnel im Zuge der B 30 zwischen den Anschlussstellen Ravensburg-Süd und Ravensburg-Nord Reparaturarbeiten an den Betondeckenträgern statt. Diese Maßnahme ist notwendig, da bei einem Anfahrunfall ein hochstehender Baggerausleger zahlreiche Betonabplatzungen an der Deckenkonstruktion verursacht hat, welche nun saniert werden. Die Arbeiten werden voraussichtlich bis Dienstag, 14. November 2023, abgeschlossen sein.
Neues Quartier für 500 Menschen
Projekt Am Rädlesbach im Gemeinderat vorgestellt
Bad Waldsee – Das große Wohnbau-Projekt „Am Rädlesbach“ wurde von der Bildschirmzeitung (DBSZ) schön öfter ausführlich dargestellt. Hier nun die Behandlung des städtebaulich bedeutsamen Konzeptes im Gemeinderat.
Herbstkonzert „Die Kraft der Elemente“
Am 2. Dezember Taktstockübergabe von Wolfgang Halder an Emma Geser
Leutkirch – Mit dem Titel „Die Kraft der Elemente“ stellt sich die neue Stadtmusikdirektorin Emma Geser ihrem Publikum beim traditionellen Herbstkonzert der Stadtkapelle Leutkirch und des Jugendblasorchesters am Samstag, 2. Dezember, um 20.00 Uhr in der Festhalle Leutkirch vor.
Lisa Fröhlich neue Vorsitzende
Elternbeirat der Döchtbühlschule stellt sich neu auf
Bad Waldsee – In der ersten Elternbeiratssitzung der Döchtbühlschule wurden Lisa Fröhlich (links im Bild) zur Vorsitzenden, Alicia Williams zur Stellvertreterin und Marcel Kupsch zum Schriftführer des Elternbeirats gewählt.
Antisemitismus
August Schuler MdL: Wir stehen an der Seite der Jüdinnen und Juden
Stuttgart – Die CDU-Landtagsfraktion war mit ihrer Fraktionssitzung bei der Israelitischen Religionsgemeinschaft Württemberg zu Gast. Mit der auswärtigen Sitzung setzte die CDU-Fraktion ein weiteres wichtiges Zeichen für den Schutz und für mehr Sichtbarkeit jüdischen Lebens in Baden-Württemberg.
Hospiz Ursula Leutkirch
Bürgerstiftung unterstützt weiter das Hospiz Ursula
Leutkirch – Die Bürgerstiftung Leutkirch ist seit dem Tag der Eröffnung dem Hospiz Ursula in Leutkirch sehr eng verbunden. Die Anfrage von Hospizleiterin Evelyn Mauch, bei einem Ausbildungsprojekt zum Thema „Kinästhetik“ eine finanzielle Unterstützung zu geben, wurde vom Vorstand der Bürgerstiftung gerne positiv beschieden. Die Bürgerstiftung führt ein gesondertes Spendenkonto für das Hospiz in Leutkirch.
Raimund Haser MdL
“Wir müssen den Kampf gegen den Antisemitismus verstärken”
Region – Diese Woche war die CDU-Landtagsfraktion zu Gast bei der Israelitischen Religionsgemeinschaft Württemberg. Der Abgeordnete Raimund Haser betonte bei den Gesprächen: „Die unsäglichen Palästina-Demos, auch in Stuttgart, machen deutlich, dass wir sichtbarer für alle Jüdinnen und Juden einstehen müssen. Es ist doch in unserem ureigenen Interesse, dem Antisemitismus in unserem Land entgegenzutreten. „Nie wieder“ ist jetzt!“
100 Jahre Vereinigung Schwäbisch-Alemannischer Narrenzünfte
Narren feiern ein Jahr lang – Höhepunkt: Dreitägiges Treffen in Weingarten
Weingarten/Bad Dürrheim – Die Vereinigung Schwäbisch-Alemannischer Narrenzünfte (VSAN) feiert 2024 ihr 100-jähriges Bestehen. Das Jubiläumsjahr wird am Gründungstag, dem 16. November 2023, eröffnet. Herausragendes Ereignis wird das Große Narrentreffen vom 19. bis 21. Januar 2024 in Weingarten (Württemberg) sein. Der VSAN gehören aus dem Verbreitungsgebiet der Bildschirmzeitung drei Zünfte an: jene aus Aulendorf, aus Bad Waldsee und aus Kißlegg.
Das Veterinäramt des Landkreises informiert
Hasenpest im Landkreis Ravensburg
Kreis Ravensburg – In diesem Jahr wurde bereits bei fünf im Landkreis Ravensburg tot aufgefundenen Feldhasen Tulärmie, die sogenannte Hasenpest, festgestellt.
Leutkirch isst gut
Zwölf Gaststätten machen mit
Leutkirch – Vom 8. bis 19. November laden zwölf Gaststätten ein, die besondere Spezialitäten anbieten. Seit vielen Jahren gibt es diese Aktion im November.
Aus dem Gemeinderat
Glasklares Bekenntnis zum Strandbad am Obersee
Kißlegg – Mittwochabend, 8. November, kurz nach 17.00 Uhr. Öffentliche Sitzung des Gemeinderats im Esthersaal des Neuen Schlosses Kisslegg. Die Publikumsstühle dort sind bald bis auf wenige Plätze besetzt. Die Gewählten beschließen bis fast 21.30 Uhr über die Geschicke der Mehr-Seen-Gemeinde. Erste Haupt-Thema dabei: das Strandbad Obersee. Bürgermeister Dieter Krattenmacher (CDU) fast die Debatte dazu so zusammen: “Der Gemeinderat will, dass weiter gebadet wird am Obersee.”
Aus dem Gemeinderat
Sieben Hektar Sonnenstrom-Freilandfläche “für eine Wende in der Energieversorgung”
Kißlegg – Reichlich. In Kisslegg entstehen übers Jahr so viele elektrische Kilowattstunden aus günstig heimischen erneuerbaren Energiequellen wie gleichzeitig insgesamt am Ort verbraucht werden. Also 100 Prozent. Damit ist die Mehr-Seen-Gemeinde anderen weit voraus. Kein Grund für den Gemeinderat, jetzt stehenzubleiben. CDU-Fraktionschef Christoph Dürr sagte am Mittwochabend bei der Gemeinderatssitzung im Neuen Schloss: “Für eine Wende in der Energieversorgung brauchen wir noch einige Freiflä…
Aus dem Gemeinderat
Die neue Südspange nimmt Gestalt an
Kißlegg – “Wir sind mit der Straßenplanung weit durch.” So Bürgermeister Dieter Krattenmacher (CDU) bei der Gemeinderatssitzung am Mittwochabend im Neuen Schloss Kisslegg. Da erntete der Rathauschef breite Zustimmung. Etwa von CDU-Fraktionschef Christoph Dürr. Aber auch vom SPD-Fraktionshäuptling Josef Kunz: “Wir freuen uns auf den ersten Spatenstich.”
Aus dem Gemeinderat
Abbruchüberlegungen zum Gebäude Franz-Reich-Straße 11
KIßlegg – Der markante ehemalige Gasthof “Löwen” mitten in Kisslegg. Mit ihm hat das Rathaus Großes vor. Direkt nebenan: das Haus Dr. Franz-Reich-Straße 11. Das alte Haus sei “so marode, dass wir uns dazu entschließen mussten, dieses Gebäude abzubrechen”, sagte Bau- und Umwelt-Amtsleiter Manfred Rommel am Mittwochabend bei der Gemeinderatssitzung im Neuen Schloss. Außerdem werde so mehr Platz frei, um auf den “Löwen” leichter zuzugehen – oder etwa auch Fahrräder abzustellen. “Ich kann d…
Aus dem Gemeinderat
Dem “Löwen” wird neues Leben eingehaucht
KIßlegg – “Das Nachhaltigste ist es eigentlich, ein Gebäude zu erhalten.” Unter diesem Grundsatz zeigte Architekt Wolff Stottele seine Ideen, Planungen und Vorschläge zum denkmalgeschützten ehemaligen “Löwen” am Mittwochabend dem Gemeinderat Kisslegg. Da “wir hier ein Denkmal betreiben in Verbindung mit Nachhaltigkeit”, bringe dies dem Gebäude “nochmal einen ganz anderen Schliff – über Kisslegg raus”. Bürgermeister Dieter Krattenmacher (CDU) nannte Gesamtkosten von 3,7 Millionen Euro. Da das …
Filme in OmU
22. Leutkircher Kinotage sind gestartet
Leutkirch – Folgende Filme werden zu den 22. Kinotagen in Leutkirch im Centraltheater seit 9. November gezeigt:
Kontakt
Redaktion
Anzeigen
TOP-THEMEN
Region – „Zig Hektar überflutet.” Und teils Bedrohungen von wichtigen Wegen – wie Bahnstrecken. Als nicht mehr aktzep…
Leutkirch – Es ist Samstagabend. Vorweihnachtszeit. Draußen vor dem Leutkircher Rathaus eine in den Dämmerschlaf gesu…
Bad Saulgau – Eine Kollision zwischen einem Regionalzug und einem Pkw hat am Mittwochabend (10.12.) bei Bad Saulgau e…
MEISTGELESENE ARTIKEL
Tödlicher Zugunfall bei Bad Saulgau! Auto von Zug erfasst und mitgeschleift
Bad Saulgau – Eine Kollision zwischen einem Regionalzug und einem Pkw hat am …
Bad Wurzach lehnt Biosphärengebiet ab
Bad Wurzach (dbsz) – Bad Wurzach steigt aus dem Prüfprozess zur Schaffung ein…
Reservisten wandern zur Sebastianskapelle
Haisterkirch – Der Verband der Reservisten der Bundeswehr lädt die Reserviste…
Wenn die Brüder einen Ausflug machen
Osterhofen / Wangen – Zentrales Anliegen der beiden marianischen Bruderschaft…
Die Kapelle in Osterhofen ist die Heimstatt zweier Bruderschaften
Osterhofen – Die wiedereröffnete Kapelle in Osterhofen ist die Heimstatt zwei…











